«ИЦ «МКТ»: токопроводы и шинные мосты

ТК
Токопровод комплектный
на класс напряжения 6, 10 кВ
(ТУ 3414-006-20871903-2014)
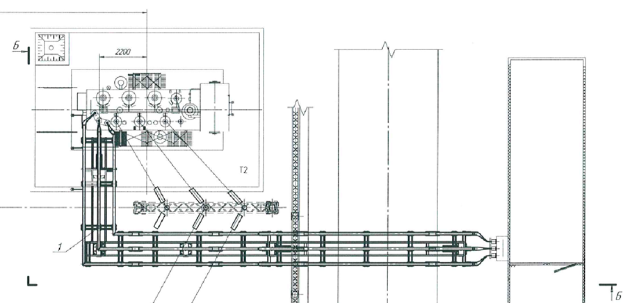
Токопровод предназначен для передачи электрической энергии трехфазного переменного электрического тока от силовых трансформаторов к ячейкам КРУ в закрытых распределительных устройствах 6,10 кВ подстанции.
Шины токопровода выполняются из проката алюминиевых сплавов электротехнического назначения трубчатого, прямоугольного, С-образного сечения.
Конструкция предусматривает компенсацию температурных расширений при эксплуатации. Соединение шин с силовым трансформатором и ЗРУ выполняется посредством гибких токопроводящих шин. Защитный экран и несущая конструкция (рама) выполнены из немагнитных материалов. Опорные металлоконструкции, кронштейны защищены от коррозии нанесением защитного покрытия методом горячего цинкования.
Технические особенности
Токопровод комплектный
Пример прямолинейной секции токопровода комплектного 10 кВ
ТК-10-2500-УХЛ1
ШМ
Шинный мост
на класс напряжения 6,10 кВ
Предназначен для передачи электрической энергии трехфазного переменного электрического тока от силовых трансформаторов к ячейкам КРУ в закрытых распределительных устройствах 6,10 кВ, токоограничивающим реакторам, ТСН.
Шины токопровода выполняются из проката алюминиевых сплавов электротехнического назначения трубчатого, прямоугольного, С-образного сечения.
Конструкция предусматривает компенсацию температурных расширений при эксплуатации. Соединение шин с силовым трансформатором и ЗРУ выполняется посредством гибких токопроводящих шин. Опорные металлоконструкции, кронштейны защищены от коррозии нанесением защитного покрытия методом горячего цинкования.
Технические особенности
Шинный мост
Пример шинного моста 10 кВ
ШМ-10/2500-УХЛ1
Made on
Tilda